東急大井町線,売買,株式会社ルクラス

全国の賃貸,売買、投資用物件から海外の物件もお取扱いできる新宿発信のルクラスです。

仲介手数料お値引き可能な物件多数ございます!

賃貸、売買、投資用物件、管理、海外物件・リフォームを取り扱う株式会社ルクラス

  • 03-6911-2228
  • 10:00~19:00(時間外相談可能) 水曜日・隔週火曜日定休

会員の方

閉じる

沿線を選択

■ご希望の駅をお選びください。(複数選択が可能です。)

条件を指定

■ご希望の条件をお選び下さい。(複数選択が可能です。)

物件種別
画像有無
価格
間取り
面積(専有・建物)
土地面積
駅徒歩
築年数
 ~
こだわり条件
人気のこだわり条件
立地
位置・フロア
間取り
特徴・設備
管理・セキュリティ
回線
周辺環境

東急大井町線  売買/南向き物件

物件を並べ替え

    降順で並び替え中 新着 | 昇順で並び替え 価格 | 昇順で並び替え 築年月 | 昇順で並び替え 面積(専有・建物) | 昇順で並び替え 土地 | 昇順で並び替え 交通 | 昇順で並び替え 所在地
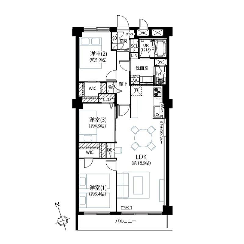
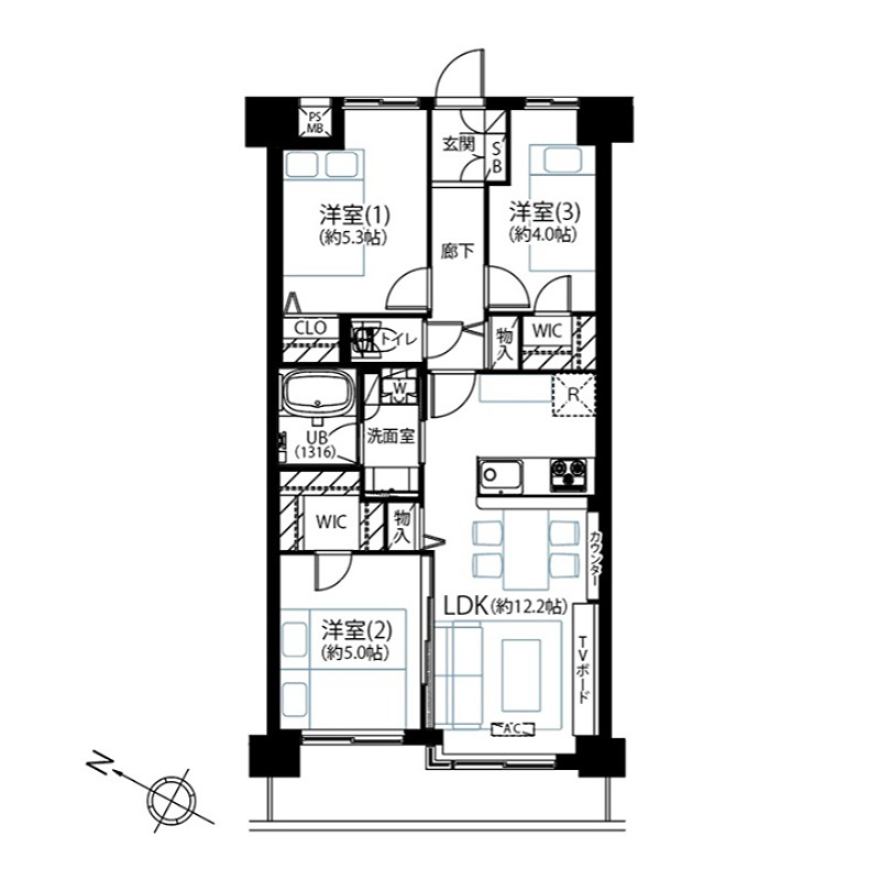
  • ※代表的なお部屋の写真と物件情報になります。
  •    タイプによっては一部仕様・眺望等が異なる場合があります。
  • ※お部屋により現況と異なる場合は現況を優先いたします。