全国の賃貸,売買、投資用物件から海外の物件もお取扱いできる新宿発信のルクラスです。
閉じる
■ご希望の駅をお選びください。(複数選択が可能です。)
■ご希望の条件をお選びください。(複数選択が可能です。)
物件を並べ替え
昇順
降順
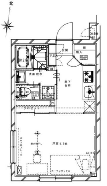
マンション
2LDK
36.05㎡
17.0万円
( 18000円)
交通: 東京メトロ有楽町線 千川駅 徒歩2分
敷金/礼金: -/ -
保証金/敷引/償却金: 2ヶ月/ -/ -
所在地: 豊島区要町
築年月: 2025年6月
ポイント
千川駅徒歩2分♦インターネット使用料 デザイナーズ×ペット相談可能×室内・防犯設備充実 内見のご予約・・・
詳細ページ
1K
18.02㎡
8.1万円
築年月: 新築2025年6月
BEL FIORE KANAMECHO 101号室の詳細ページ
1R
23.2㎡
8.8万円
( 10000円)
交通: 西武新宿線 鷺ノ宮駅 徒歩10分
保証金/敷引/償却金: -/ -/ -
所在地: 練馬区中村南
築年月: 2014年12月
~~フリーレント1ヶ月付(^^♪~~ ペット相談可能♪ 敷金・礼金不要物件♪ 1月~3月は物件の取り・・・
Branche鷺ノ宮Ⅱ 202号室の詳細ページ
50.06㎡
20.0万円
( 12000円)
交通: 西武新宿線 下井草駅 徒歩6分
敷金/礼金: 1ヶ月/ -
所在地: 杉並区井草
築年月: 2024年1月
◇◆◇2026年から『New Life Style』を迎える方へ♪◇◆◇ ~都心へのアクセス好立・・・
フレンシア下井草 302号室の詳細ページ
30.1㎡
10.5万円
交通: 都営大江戸線 豊島園駅 徒歩10分
所在地: 練馬区早宮
築年月: 2007年12月
☆担当者お勧め物件☆ 敷金・礼金なし(^^♪ 都会利便性と緑の安らぎを兼ね備えた住まい 豊島園と言え・・・
Branche豊島園 406号室の詳細ページ
2DK
41.27㎡
20.3万円
( 15000円)
交通: 西武池袋線 椎名町駅 徒歩5分
所在地: 豊島区西池袋
築年月: 2022年12月
椎名町駅徒歩5分・副都心線要町駅徒歩8分複数駅利用可能で通勤・通学便利♪ 2人入居可能・ペット相談可・・・
プレディアコート西池袋 604号室の詳細ページ
アパート
27.49㎡
10.25万円
( 3500円)
交通: 東京メトロ有楽町線 千川駅 徒歩7分
敷金/礼金: -/ 153750円
所在地: 豊島区高松
築年月: 2022年3月
~~東京都豊島区1K~~ ホームセキュリティーや浴室乾燥やペット可など宅配BOXも完備♪ ウォークイ・・・
コート デュ ソミュール 102号室の詳細ページ
19.27㎡
8.4万円
( 5000円)
交通: 山手線 大塚(東京)駅 徒歩5分
敷金/礼金: 1ヶ月/ 1ヶ月
保証金/敷引/償却金: -/ 1ヶ月/ -
所在地: 豊島区北大塚
築年月: 2024年3月
◇◆◇2026年の新大学生・新社会人のみんなにおススメしたい♪◇◆◇ ~ほぼ新築!?角部屋の高級賃貸・・・
CHAMBORD大塚 102号室の詳細ページ
25.55㎡
12.8万円
( 20000円)
交通: 東京メトロ有楽町線 池袋駅 徒歩10分
所在地: 豊島区池袋
築年月: 2023年5月
池袋徒歩10分☆デザイナーズ物件登場!洗練デザイン×充実設備で毎日がスタイリッシュ♪ ネット無料で在・・・
ZOOM池袋West 502号室の詳細ページ
2SLDK
69.34㎡
18.7万円
交通: 西武新宿線 武蔵関駅 徒歩14分
敷金/礼金: -/ 1ヶ月
所在地: 練馬区南大泉
築年月: 2011年12月
閑静な住宅街で穏やかな新生活♪ ゆったり2SLDK・68.94㎡の居住空間。 充実の設備は暮らしを豊・・・
エルデンシア南大泉 306号室の詳細ページ
25.73㎡
8.6万円
交通: 西武有楽町線 新桜台駅 徒歩4分
敷金/礼金: -/ 2ヶ月
所在地: 練馬区羽沢
築年月: 2017年7月
桜新台駅徒歩4分☆インターネット無料 宅配ボックスや敷地内ゴミ置き場、エレベーターもあり共用設備充実・・・
アゼスト新桜台 115号室の詳細ページ
25.85㎡
11.6万円
交通: 西武新宿線 下落合駅 徒歩9分
所在地: 新宿区中落合
築年月: 2019年3月
◎こちらのお部屋は3月中旬ご入居可能です◎ 下落合駅徒歩9分♢ペット相談可能・インターネット無料・バ・・・
ジェノヴィア新宿中落合スカイガーデン 401号室の詳細ページ
問い合わせ
(234坪)
BEL FIORE KANAMECHO 101号室の 詳細ページ
Branche鷺ノ宮Ⅱ 202号室の 詳細ページ
フレンシア下井草 302号室の 詳細ページ
Branche豊島園 406号室の 詳細ページ
プレディアコート西池袋 604号室の 詳細ページ
コート デュ ソミュール 102号室の 詳細ページ
CHAMBORD大塚 102号室の 詳細ページ
ZOOM池袋West 502号室の 詳細ページ
エルデンシア南大泉 306号室の 詳細ページ
アゼスト新桜台 115号室の 詳細ページ
ジェノヴィア新宿中落合スカイガーデン 401号室の 詳細ページ