◆◇八幡山ビューグリーン◇◆ 701号室 世田谷区上北沢[マンション]

◆◇八幡山ビューグリーン◇◆ 701号室 世田谷区上北沢[マンション]

マンション[世田谷区上北沢]

賃貸、売買、投資用物件、管理、海外物件・リフォームを取り扱う株式会社ルクラス

  • 03-6911-2228
  • 10:00~19:00(時間外相談可能) 水曜日・隔週火曜日定休

会員の方

閉じる

物件詳細

◆◇八幡山ビューグリーン◇◆ 701号室 世田谷区上北沢[マンション]

 

◆◇八幡山ビューグリーン◇◆ 701号室 世田谷区上北沢[マンション]の物件詳細ページです。

物件種別: マンション

お問い合わせ番号:0000006211

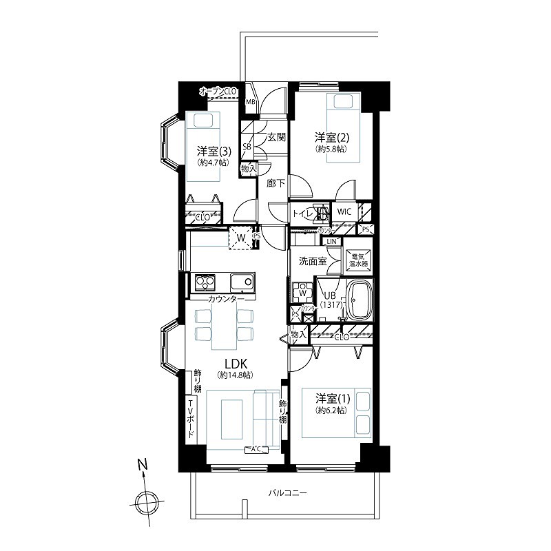
間取り(面積)

3LDK

( 70.2㎡(壁芯))

価格(円)

7799万円
(税込)

交通: 京王線 八幡山駅 徒歩2分

専有・建物: 約21.23坪

管理費/修繕積立金:18,984円/月/9,846円/月

築年月:1981年3月

ポイント

◆耐震基準適合◆駅徒歩2分◆
南西向き×角部屋=陽当り・眺望・通風良好♪
緑風心地良い八幡山・上北沢エリア♡
良好な住環境と利便性で豊かな生活。
一度住んだら離れられない、そんな街です♪

 

問い合わせ(無料)

TEL: 03-6911-2228

お問い合わせ番号: 0000006211

QRコード

資料請求などはこちら

問い合わせ(無料)

TEL: 03-6911-2228

お問い合わせ番号: 0000006211

担当:高橋 諒

◆耐震基準適合◆駅徒歩2分◆
南西向き×角部屋=陽当り・眺望・通風良好♪
緑風心地良い八幡山・上北沢エリア♡
良好な住環境と利便性で豊かな生活。
一度住んだら離れられない、そんな街です♪

◆太陽の恵みを感じる温もりあふれる空間
◆南から明るい光が射し込む陽だまり空間
◆季節物の衣類もスッキリ収納できるWIC
◆料理をしながらでも会話を楽しめる対面キッチン
◆後片付けもラクラクな食器洗乾燥機付

【『貴方のお抱えの不動産屋さん』を目指します】
ルクラスは『お取引が終わってからが本当のお付き合い』と考えております。
信用ではなく、皆様に『信頼』される会社である為、努力を惜しみません。
ルクラスだからできる、ルクラスにしかできない営業をご提供いたします♪

【夜分の内見対応可能】
■お仕事終わりの帰り道にサクッとご案内も可能です♪お忙しい方は是非ご利用ください。

【TV電話で内見代行】
■希望の物件を現地からTV電話します。
■お電話で直接ご指示頂きご希望の場所を撮影します。
※遠方のお客様も安心してご内見♪

セールスポイント

特徴等

免震・耐震構造:耐震構造 

リフォーム:詳細はお問合せください。(内装リフォーム終了日:2026年3月13日) 

設備等

エアコン ウォークインクローゼット 全居室収納 ケーブルテレビ BS CS 光ファイバー システムキッチン 食器洗浄乾燥機 ガスコンロ コンロ口数:3口 浄水器 バス・トイレ別 温水洗浄便座 シャワー 追い焚き風呂 浴室乾燥 脱衣所 南西角住戸 全居室フローリング 室内洗濯機置場 ガス給湯 TVインターホン 火災報知機 

ガス:都市ガス 水道:公営 下水:公共下水 外壁:タイル エレベーター 

部屋外設備 バルコニー:8.4㎡ 
駐車場 要問合せ 月額:31,900円 
駐輪場 有り  バイク置き場
小学校 世田谷区立上北沢小学校 512m  中学校 世田谷区立芦花中学校 1069m 
近隣施設

スーパー:オオゼキ 八幡山店  123m

スーパー:京王ストア 八幡山店  240m

コンビ二:ファミリーマート 八幡山駅北店  17m

コンビ二:セブンイレブン 上北沢5丁目店  98m

ドラッグストア:マツモトキヨシ八幡山駅前店  166m

スーパー:京王ストア 八幡山店  240m

ショッピング施設:ドン・キホーテ環八世田谷店  534m

郵便局:八幡山駅前郵便局  223m

物件概要

物件名 ◆◇八幡山ビューグリーン◇◆ 701号室
物件所在地 東京都世田谷区上北沢4丁目35-15 周辺地図
交通機関 京王線 八幡山駅 徒歩2分
京王線 上北沢駅 徒歩11分
京王線 芦花公園駅 徒歩12分
敷地の権利形態 所有権
国土法による許可又は事前届出 不要 セットバック
総戸数 41戸
建物構造 鉄骨鉄筋コンクリート 築年月 1981年3月
面積(専有・建物) 70.2㎡(壁芯)
窓の向き バルコニー 8.4㎡
建物階数 地上12階建  所在階 7階
管理

管理人形態:日勤 管理形態:全部委託

管理会社:株式会社長谷工コミュニティ

その他費用 第二修繕積立金:7,100円/月
現況 空き 引渡時期 即時
備考 △▼△こちらの物件は仲介手数料法定上限(本体価格の3.3%+6.6万円)の半額!!△▼△

その他

取引態様 媒介(仲介) 自社管理番号 0000006211
情報更新日 2026年3月15日 次回更新予定日 2026年4月14日
不動産会社コード 2104443 物件管理コード 2133123654470000003161
  • ※価格は物件の代金総額を表示しており、消費税が課税される場合は税込と表記の上、税込価格で表示しております。
  • ※間取りの「S」はサービスルーム(納戸)です。
  • ※現況と異なる場合には現況を優先します。
  • ※QRコードは(株)デンソーウェーブの登録商標です。
  • ※利回りとは、当該不動産の1年間の予定賃料収入の不動産取得対価に対する割合であり、
  •    公租公課その他当該物件を維持するために必要な費用の控除前のものです。
  •    また、予定賃料収入が確実に得られることを保証するものではありません。

資料請求などはこちら

問い合わせ(無料)

TEL: 03-6911-2228

お問い合わせ番号: 0000006211

お問い合わせ先:株式会社ルクラス 本店

所在地 : 東京都新宿区西新宿1丁目15-4第二セイコービル6F
TEL : 03-6911-2228
免許番号 : 東京都知事(3)第97028号
加盟団体 : (公社)首都圏不動産公正取引協議会加盟

この部屋を見学予約

ホームへ戻る